![]()
CASE4
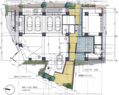
中野区本町四丁目住宅 (現 ウェルカーサ新中野)
高齢者住宅と子育て支援に配慮した民間賃貸集合住宅。基本設計、実施設計を担当。
エントランス・アプローチからエントランス・ホール、東側接道部の素材、色彩、意匠に一体感を持たせ、一連の庭としてデザイン。限られた植栽帯には、常緑樹と彩り豊かなカラーリーフプランツを効果的に配植。
・東京都中野区
・公社集合住宅/0.64ha(全体)
・竣工:2011.2
印刷用表示 |テキストサイズ 小 |中 |大 |
東京都新宿区新宿2-2-4 第10御苑宮廷マンション
TEL :03-5341-4457 FAX:03-5341-4458
URL:http://l-pd.com/
![]()
高齢者住宅と子育て支援に配慮した民間賃貸集合住宅。基本設計、実施設計を担当。
エントランス・アプローチからエントランス・ホール、東側接道部の素材、色彩、意匠に一体感を持たせ、一連の庭としてデザイン。限られた植栽帯には、常緑樹と彩り豊かなカラーリーフプランツを効果的に配植。
・東京都中野区
・公社集合住宅/0.64ha(全体)
・竣工:2011.2